Доступные дома · Контроль качества · Гарантия 5 лет

Проект дома из СИП-панелей П-76

Общая площадь116 м²
Полезная площадь92 м²
Размеры7.25 × 8.0 м
Кол-во комнат4
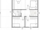
Кухня-гостиная с3 спальнями
Удобства2 санузла
Высота 1-го этажа2800 мм
Высота 2-го этажа2500 мм
ТипЗимние
КонструкцияСИП-панели
Этажность С мансардой
СтильКлассический
Стоимость строительства
1 968 000
Фундамент ?204 800 ₽
Домокомплект ?1 961 600 ₽
Монтаж ?656 000 ₽
2 236 800
Фундамент ?204 800 ₽
Домокомплект ?1 961 600 ₽
Монтаж ?656 000 ₽
2 468 800
Фундамент ?204 800 ₽
Домокомплект ?1 961 600 ₽
Монтаж ?656 000 ₽

Консультация по проекту П-76

или

Позвоните и закажите
бесплатный расчёт проекта

8 (812) 242-12-16
Сроки строительства от 7 до 30 дней
💳
Поэтапная оплата строительства
✏️
Корректировка проекта бесплатно
🛡️
Гарантия 5 лет

Описание проекта П-76

Проект дома П-76 — дом из СИП-панелей площадью 116 м² в классическом стиле с мансардным этажом. Фасад облицован декоративным камнем песочного цвета в нижней части и оштукатурен в светло-зелёный оттенок выше. Крыша двускатная, покрыта песочной черепицей. Деревянные колонны и карнизы тёмно-коричневого тона обрамляют входную группу. Крыльцо с навесом и деревянными перилами — функциональная входная зона. Окна — прямоугольные, с тёмными рамами, размещены симметрично на обоих этажах. Боковой фасад также имеет окна на каждом уровне, обеспечивая равномерное освещение. Три уровня дают возможность разделить дневную и ночную зоны. На 116 квадратных метрах можно разместить гостиную, кухню, несколько спален и подсобные помещения. Дом рассчитан на круглогодичное проживание. Стоимость каркаса — от 1 968 000 ₽. Проект дома П-76 — вариант для тех, кому нужен классический загородный дом средней площади с добротной отделкой фасада и продуманным входом. Планировку можно скорректировать бесплатно.

Вы можете бесплатно скорректировать планировку дома вместе с нашими специалистами — увеличить площадь, поменять комнаты местами, добавить террасу или гараж.

Комплектация дома П-76

1. Фундамент

204 800 руб.
  • Винтовые сваи — обработанные антикоррозийным составом
  • Диаметр — 108 мм, длина — 2500 мм, оголовок — 250×250 мм
  • Доставка, монтаж спецсредством, обрезка в уровень
  • Бетонирование стволов, приваривание оголовков

2. Домокомплект

1 961 600 руб.
  • Обвязка — брус 150×200 мм
  • Перекрытие цокольное — СИП-панели 224 мм
  • Высота 1-го этажа — 2800 мм
  • Наружные стены — СИП-панели 174 мм, «тёплый угол»
  • Внутренние перегородки — каркас 95 мм
  • Крыша — СИП-панели 174 мм
  • Весь пиломатериал (сухой, строганный, антисептированный)

3. Монтаж

656 000 руб.
  • Работа бригады
  • Крепёж и расходные материалы
  • Гвозди, саморезы, монтажная пена
  • Огне-биозащита
  • Ветрозащитные и гидроизоляционные материалы

4. Покрытие кровли Стандарт и Комфорт

  • Доступно в пакетах «Стандарт» и «Комфорт»
  • Металлочерепица или мягкая черепица на выбор
  • Водосточная система
  • Подшивка свесов

5. Окна и двери Только Комфорт

  • Доступно в пакете «Комфорт»
  • Пластиковые окна с двухкамерным стеклопакетом
  • Входная металлическая дверь с утеплением

6. Внешняя отделка

индивидуально
  • Цена после выбора материалов и дизайна
  • Сайдинг, имитация бруса, фасадные панели
  • Штукатурка, облицовочный кирпич

7. Внутренняя отделка

индивидуально
  • Дизайн-проект дома за 50% от стоимости
  • Стены, полы, потолки — на выбор заказчика
  • Гипсокартон, вагонка, ламинат, плитка

8. Инженерные системы

индивидуально
  • Электрика, водоснабжение
  • Канализация, отопление
  • Цена после разработки ТЗ с заказчиком

Отделка и дополнительные услуги

Внешняя отделка фасада

по запросу

Сайдинг, имитация бруса, фасадные панели, штукатурка, облицовочный кирпич. Расчёт после выбора материалов.

Внутренняя отделка

по запросу

Стены: гипсокартон, вагонка, обои, покраска. Полы: ламинат, плитка, доска. Потолки: натяжные, подвесные, деревянные. Дизайн-проект при заказе.

Пристройки

по запросу

Веранда, терраса, гараж, баня, навес — индивидуальный расчёт к любому проекту. Забор и благоустройство участка.

Подключение коммуникаций

по запросу

Электричество, газ, водоснабжение, канализация. Помощь с документами и согласованиями.

Сомневаетесь в выборе?

Мы проконсультируем по всем вопросам и поможем рассчитать точную стоимость.

8 (812) 242-12-16
Заказать звонок

Перезвоним в течение 30 минут

СитиСип
Онлайн

Здравствуйте! Я помогу подобрать проект дома, рассчитать стоимость или ответить на вопросы о строительстве из СИП-панелей. Спрашивайте!